zdfa02b

施設概要

photo01

展示会・即売会・シンポジウムなど
幅広い催し物でご利用いただける多目的ホール

◆使用時間    9:00~21:00
◆フロア面積   約340㎡
◆劇場形式    最大420~464名(移動観覧席)
◆パーティー形式 最大500名(立食)
◆スクール形式  最大200名

360view

360°パノラマビュー

上下左右にドラッグして多目的ホールのイメージをご確認ください。

photo10

ホールロビー(2階)
来場者のホールへの入口はこちらです

photo05

ホール控え室(3階)
背壁の一部が鏡となっています

photo04

ホール控室付属化粧室(3階)※別途料金
洗面台2カ所と更衣スペースがあります

 多目的ホール使用例

photo06

講演会・シンポジウム・発表会など、様々な催しにご利用いただけます。

約10分間のうちに、ステージは床下へ、客席は背壁に収納され、劇場形式からフラットフロアへと変わります。シンポジウムの後に、続けてパーティーを行うこともできます。

地明かりはLED化しており、用途に合わせて明るさの調整ができます。明るくすれば講習会などでも手元が見えやすくなります。

また、音響・照明設備もご用意しておりますので、お客様ご自身の創造性が発揮できる空間づくりが可能です。

全電通ホールの持つすべての機能をフルにご活用ください。

line02
line01
tamokuteki

通常は劇場形式で420席が配列されています。
レイアウトの変更や座席数の増減を希望される場合は、会館職員の指示に従って、お客様側で契約時間内に
配列・一時格納・戻す等の設営作業を行ってください。(会館側に設営を依頼される場合は有料となります)
また、プロジェクター等機器使用の場合は、座席を減らす必要がございます。

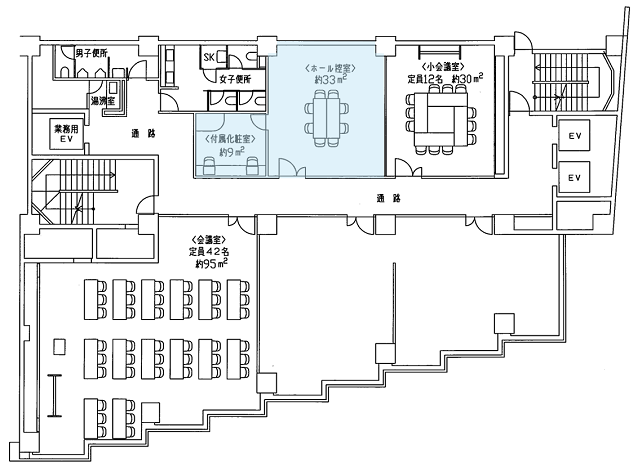
 ホールレイアウト(2階)

 ホール控室レイアウト(3階)

ホール控室と小会議室を同時にご利用になる場合は、間のパーテーションを外して1つの部屋として使用できます。
(小会議室の使用料金が必要)
ホール控室はホール使用料に含まれますが、ホール控室付属化粧室は別料金となります。

施設利用 時間・料金

 多目的ホール

ホール控室のご利用はホール使用料金に含まれております。ホール控室付属の化粧室をご利用の場合は下記料金が必要となります。
下記の料金は消費税10%を含みます。


区 分

使用時間
使用料金
平日土日祝
午   前9時~12時116,160円139,920円
午   後13時~16時30分174,240円209,880円
夜   間17時30分~21時211,200円253,440円
午前・午後9時~16時30分217,800円261,360円
午後・夜間13時~21時287,760円345,840円
全   日9時~21時303,600円360,360円

 ホール控室附属化粧室(3階)

下記の料金は消費税10%を含みます。

区  分使用時間使用料金(平日・土日祝)
午   前9時~12時5,280円
午   後13時~16時30分5,280円
夜   間17時30分~21時5,280円
午前・午後9時~16時30分6,600円
午後・夜間13時~21時6,600円
全   日9時~21時7,920円

ホール使用規定

1.当会館ホールは2階に位置し、多目的ホールとしてご使用いただけます。
  ご使用の形式はフラット・フロアー形式と劇場形式の2形式のご使用方法ができます。

 1-1.フラット・フロアー(スクール)形式・・・・・・商品展示会、立食パーティ(最大500名程度)等。

    ※注意事項
    F・F形式にてご使用のお申込は2区分(午前+午後又は午後+夜間)以上のお申込に限らせていただきます。

 1-2.劇場(シアター)形式・・・講演会、音楽会、映写会等。可変式舞台のため舞台の奥行きを換えることで、定員が限定されます。

 1-3.定員・・・・・・・・舞台A,B,C,3面使用(舞台奥行き 6.6m)・・・・・420席(基本座席数です)
                舞台A,B,2面使用(舞台奥行き4.5m) ・・・・・・・464席(最大座席数です)

    ※注意事項
    1)通常は劇場形式で基本座席数(420席)が配列されております。
      座席数の増減を希望されるときはお客様側にて契約時間内に所定の場所より会館職員の指示に従って配列
      又は一時
格納をお願いいたしします。     

    2)前席移動椅子の撤去格納、並びに元通りの配列に戻して頂く時間もご契約時間内に含まれますので、
      ご使用計画に
ついては契約時間の枠をご配慮ください。

2.ホール使用ご希望の方は、当館ホームページよりお申込みいただき、当館からのご請求にもとづき使用料を収めていただき
ます。
  仮予約の状態ではご使用いただけませんのでご注意願います。また、当館より請求書を発行した時点で使用契約の締
結とさせていただきます。

 2-1.ホールのご利用料金については当館ホームページを参照頂くか、当館までお問い合わせください。

3.ホール付帯の備品使用料については当館ホームページにてご確認頂くか当館までお問い合わせください。
  ホール付帯備品については無料と有料のものがございますのでご注意くだくさい。

 3-1.催物の内容によってホール付帯備品使用が多くなる場合は、事前に会館側と充分打合せを行ってください。

 3-2.ホール調整室内の設備(音響調整卓、照明調整卓等)は主催者(お客様)側のみでのお取扱操作はお断りします。
     会館側オペレーター(操作技師)がセット、取扱指導、調整、立会を各設備毎に1名(人件費、有料にて)付けさせて
     頂きますので、ご了承ください。尚、調整室内には飲食物の持込みは厳禁とします。

 3-3.会館側に有料のオペレーター(操作技師)を依頼される場合、催物の内容によっては、音響、照明共にオペレーター要員が
     2名以上必要な場合がありますので催物内容について事前にご相談ください。

 3-4.舞台用、受付用等に使用の椅子、テーブル等は主催者(お客様)側で所定の場所より会館職員の指示に従って配列使用し
     催物終了後はもとの場所に格納してください。

 3-5.ホール控室付属の化粧室(洗髪洗面器付化粧台3面の設備あり)は有料となります。使用料については当館ホームページにて
     ご確認頂くか当館までお問い合わせください。

 3-6.ホール付帯備品使用料については、ご使用当日催物終了までに請求書を主催者(お客様)にお渡しいたします。

 3-7.お支払いについては、当日のご精算または後日(原則、1週間以内)下記銀行口座振込支払いの方法がございます。
     取扱銀行:みずほ銀行神田支店普通預金口座番号:1073572  口座名:(一財)全電通労働会館
     取扱銀行:中央労働金庫本店普通預金口座番号 :1002487  口座名:(一財)全電通労働会館
     
     ※注意事項
     誠に恐縮ですが、お振込手数料はお客様のご負担となりますので、ご了承ください。
     銀行振込頂いたお客様への領収書発行は控えさせていただきます。
     領収書の発行が必要なお客様はお手数ですがご連絡をお願い致します。なお、領収書につきましてはメールでの発送のみの対応となります。

4.会館側の止むを得ぬ事情(火災等、不測の事態)以外でお客様側のご事情によるご使用のお取消し(キャンセル)について
  既納使用料金の払戻しは下表の通りのお取扱となります。

ホール
取消(キャンセル)の申し出日既納料金払戻し率
使用日より180日以前75%
使用日よりさかのぼり
90日~179日の間
50%
使用日よりさかのぼり
31日~89日の間
25%
使用日よりさかのぼり
30日以内
0%

   ※注意事項
   ご使用計画には遺漏のない様に充分なご検討、ご配慮の上、後日変更のないよう、日程をお決めになってお申込ください。

5.お申込時の使用目的欄には、催事内容を正確にご記入下さい。

  ※注意事項
  1)お申込時において、使用目的に記載の催事内容が「あいまい」なときは使用をお断わりする場合があります。
  
  2)ホール使用権は、お申込時にご記入の方以外に転貸、又は使用権の譲渡、及びお申込時の使用目的欄に記入と著しく異な
った目的で
    使用することが明らかになった場合は一方的、且つ自動的にホール使用権を取消す場合がございます。

  3)各種イベント、学術発表会等に類する催物で舞台設営及び設営撤去に時間を要するのが明らかなのに開演(開催)時間のみの
    使用区分での使用申込はお断わりします。使用契約後と言えども明らかに時間的に無理と判断されるときはご使用当
日、時間的な
    トラブル発生の恐れが予測されますので開催内容の時間的な計画変更を主催者側(お客様)に対し再考を求
めます。
    再考に応じて戴けぬときは、使用契約を一方的に取消させて頂くことがあります。

6.ホール及びロビーの壁面、床面等への粘着テープ等を使用しての粘紙等の掲示は原則としてお断りします。

 6-1.やむをえぬ事情で掲示物、又は床に電気機器のコード等を固定する必要のあるときは事前に会館側へご相談下さい。
      掲示場所等の指定、粘着テープ等の種類を指定しますのでその指示に従ってください。

 6-2.催物終了後は主催者側で貼った掲示物、粘着テープ類等は必ずきれいに剥してください。

 6-3.ホール内外でのご使用者側の掲示、印刷物等の配布、販売、寄付等の行為を行うときは、事前に管理事務所の了承を得てください。

7.入場者の受付、人員整理、入場者制限(定員厳守)等についてはご使用者側で責任を持って対処してください。

  ※注意事項
  整理不十分により起きた事故には当会館は一切責任を負いませんので、ご留意ください。

8.危険物の持込みは厳禁いたします。

 8-1.火災その他、不測の事態には主催者(お客様)側で災害予防、並びに万一の場合における緊急避難に対する処置については、
     充分にご留意ください。

9.盗難等の事故には、当会館は一切の責任を負いませんので、主催者(お客様)側で充分ご注意ください。

 9-1.当会館内外の付帯設備器具等を毀損、又は紛失された場合は、その損害を弁償して戴きますので取扱等はご注意下さい。

10.使用時間の延長はお断わりします。

 10-1.舞台設営、客席増減、受付準備、催物参加者等の入退場に要する時間もご契約時間内に含まれますので、ご使用計画については
      契約時間の枠をご配慮ください。

11.ホール使用主催者又は参加者のお呼出し電話は03−3219−2213 (着信専用)です。

  ※注意事項
  電話呼出しのお取次ぎは主催者(お客様)側でお願いします。

12.当会館ホールには特にホールお客様用として駐車場の設備がありません。
   事前配布の案内書には駐車場が無い旨明記の上、最寄りの交通機関を利用する様ご案内ください。

ホール予約状況