zdfa01a

施設概要

photo02

会議・講習会だけではなく、書道教室など文化教室としてもご利用いただける会議室

◆定員      42名
◆使用時間    9:00~21:00
◆フロア面積   約95㎡

360view

360°パノラマビュー

上下左右にドラッグして会議室のイメージをご確認ください。

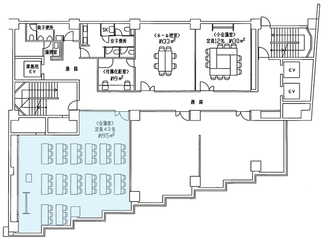
 会議室レイアウト(3階)

kaigi_dai

施設利用 時間・料金

下記の料金は消費税10%を含みます。


使用時間
定員42名
平日土日祝
午   前9時~12時18,480円21,120円
午   後13時~17時23,760円26,400円
夜   間18時~21時25,080円27,720円
午前・午後9時~17時31,680円36,960円
午後・夜間13時~21時35,640円42,240円
全   日9時~21時44,880円52,800円

会議室使用規定

1.当会館の会議室は3階に位置し、有料貸会議室として会議室、小会議室の2室がご使用頂けます。

 1-1.会議室の形態は通常、学校教室形式に机、椅子が配列(基本形式として)されております。

 1-2.小会議室の形態は通常、口の字形式に机、椅子が配列(基本形式として)されております。

 1-3.定員数
     会議室・・・・・定員 42名です。
     小会議室・・・・・定員 12名です。

  ※注意事項
  1)主催者(お客様)側にて、常設の机、椅子以外のお持込み使用は原則としてお断りします。

  2)会議室を会議、講演会、講習会等以外のパーティ、展示会等でのご利用はできません。

  3)会議等、催物の設営、受付準備、後片付け、参加者の入退室に要する時間もご契約時間内に含まれますので、ご使用計画については
    契約時間の枠をご配慮ください。

  4)各会議室の定員は厳守してください。

  5)会議室に学校教室形式(基本形式)にて配列されている机、椅子を主催者(お客様)側で移動された場合は、
    必ずご契約時間内に元の学校教室形式に戻してください。

2.会議室使用ご希望の方は、当館ホームページよりお申込みいただき、当館からのご請求にもとづき使用料を収めていただきます。
  仮予約の状態ではご使用いただけませんのでご注意願います。また、当館より請求書を発行時点で使用契約の締結とさせ
ていただきます。

 2-1.各会議室のご利用料金については当館ホームページを参照頂くか、当館までお問い合わせください。

3.会議室用付帯備品使用料については当館ホームページにてご確認頂くか当館までお問い合わせください。
  会議室用付帯備品については無料と有料のものがございますのでご注意くだくさい。

 3-1.会議室用付帯備品使用ご希望の方は事前に予約のお申出をして下さい。
     ただし、小会議室の備品貸出は原則としてございません。

 3-2.会議室用付帯備品使用料については、ご使用当日催物終了までに請求書を主催者(お客様)にお渡しいたします。

 3-3.お支払いについては、当日のご精算または後日ホール使用規定書記載の銀行口座振込支払いの方法がございます。

4.会館側の止むを得ぬ事情(火災等、不測の事態)以外でお客様側のご事情による使用のお取消し(キャンセル)について
  既納使用料金の解約払戻しは下表の通りのお取扱となります。

会議室
取消(キャンセル)の申し出日既納料金払戻し率
使用日より90日以前90%
使用日よりさかのぼり
60日~89日の間
45%
使用日よりさかのぼり
11日~59日の間
25%
使用日よりさかのぼり
10日以内
0%

   ※注意事項
   ご使用計画には遺漏のない様に充分なご検討、ご配慮の上、後日変更のないよう、日程をお決めになってお申込ください。

5.お申込時の使用目的欄には、催事内容を正確にご記入下さい。

   ※注意事項
   会議室の使用権はお申込時に記載の方以外に転貸し又は譲渡する事、及びお申込時の使用目的欄にご記入の使用目的と
   著
しく異なった目的で使用することが明らかになった場合は、一方的且つ自動的に会議室使用権を取消す場合がございます。

6.会議室用として駐車場の設備はありません。
  事前配布の案内書には駐車場が無い旨明記の上、最寄りの交通機関を利用する様ご案内ください。

7.以上記載以外の事項についてはホール使用規程の取決めに準じますのでホール使用規程をご一読ください。

会議室予約状況